Espace propriétaire
fr

Votre recherche

Fleury (11560)

6 pièces - 101,09 m²

Grand local professionnel avec parking

1 200 € HC*
Ref : 7407
A propos de ce bien

A louer local professionnel clair et lumineux, d'une surface de 101.09 m², situé sur le village de Fleury d'Aude, à deux pas des commerces et des écoles.

Un parking avec plusieurs places de stationnement permettra à votre clientèle de se garer sans difficulté.

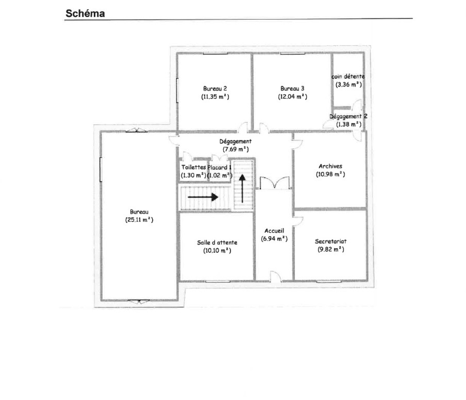
Il se compose d'une entrée sur un espace d'accueil, une pièce en face pouvant servir de salle d'attente, équipé d'une climatisation, un dégagement avec placard desservant 4 bureaux dont un grand de 25 m² et un wc.

Voir plan en annexe.

Disponible immédiatement.

Loyer mensuel 1 200.00 €, charges à provisionner (ordures ménagères). Frais d'agence 506.00 €.

Descriptif de ce bien
Général
Type de transac Local professionnel
Code postal 11560
Surface habitable (m²) 101,09 m²
Nombre de pièces 6
Nombre de niveaux 1
Superficie (m²) 101.09
Financier
Loyer 1 200 €
Honoraires charge locataire 506 €
Dont état des lieux 253 €
Dépot de garantie 1 200 €
Chiffre d'affaires
EBE
Energie
DPE GES
Autour du bien
  • Commerces et santé
  • Loisirs
  • Ecoles
  • Transports
  • Pratique
Contacter pour ce bien
L'agence
Téléphone 04.68.33.31.44
Adresse
1 rue de la Poste 11560 Fleury

* Champ obligatoire

Les informations recueillies sur ce formulaire sont enregistrées dans un fichier informatisé par La Boite Immo agissant comme Sous-traitant du traitement pour la gestion de la clientèle/prospects de l'Agence / du Réseau qui reste Responsable du Traitement de vos Données personnelles. La base légale du traitement repose sur l'intérêt légitime de l'Agence / du Réseau. Elles sont conservées jusqu'à demande de suppression et sont destinées à l'Agence / au Réseau. Conformément à la loi « informatique et libertés », vous disposez des droits d’accès, de rectification, d’effacement, d’opposition, de limitation et de portabilité de vos données. Vous pouvez retirer votre consentement à tout moment en contactant directement l’Agence / Le Réseau. Consultez le site https://cnil.fr/fr pour plus d’informations sur vos droits. Si vous estimez, après avoir contacté l'Agence / le Réseau, que vos droits « Informatique et Libertés » ne sont pas respectés, vous pouvez adresser une réclamation à la CNIL. Nous vous informons de l’existence de la liste d'opposition au démarchage téléphonique « Bloctel », sur laquelle vous pouvez vous inscrire ici : https://www.bloctel.gouv.fr Dans le cadre de la protection des Données personnelles, nous vous invitons à ne pas inscrire de Données sensibles dans le champ de saisie libre.
Ce site est protégé par reCAPTCHA, les Politiques de Confidentialité et les Conditions d'Utilisation de Google s'appliquent.

Découvrir nos outils